Once you are past the fabric choices, there are other options that Decorating with Fabric’s SolarSmart Shading System offers. The control mechanisms are the next consideration. You can choose spring rollers, clutch rollers, spring-assist clutch rollers and of course motorization. Within motorization, your options include battery powered (limited in size and weight), hardwired and wireless controls. We also have the capability of integrating our controls with most automation systems like Lutron or Crestron.
Manual Bead Chain Clutch Operating System:
Manual clutches are available in10lb, 20lb, and 24lb, depending on the size of shade and the fabric selected. They can be mounted either on right or left side. The chain can be Stainless Steel (standard) or nylon bead chain which hangs at the side, leaving the view unobstructed.
- Up and down stops prevent shades from being raised or lowered too far.
- Our spring-loaded idler and universal brackets offer installation ease and flexibility.
- Optional Spring Assist (large units require fixed-pin idler).
- Cord tension device is included, keeps loops from being easily accessible and out of reach of children.

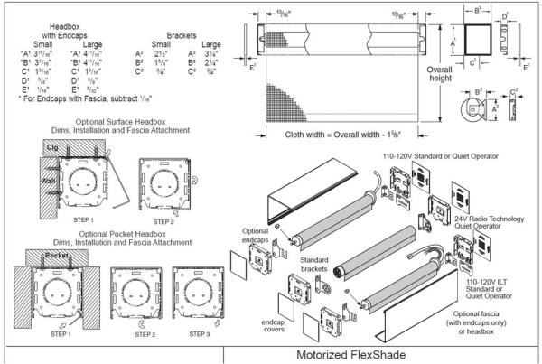
Motorized SolarSmart Shades Operating System:
Motorized SolarSmart Shades offer the ultimate in high-tech convenience in a functional shading system. The simplicity of roller shades combined with the versatility of motorized operation offers convenience as well as LEED compliance.
- Available in any size from 2′ through 14′ wide. Larger sizes available in other systems.
- Retract completely when not in use for an unobstructed view.
- Installation choices range from simple mounting brackets, to end caps and fascia, to complete extruded pockets with bottom closure panels.
- Have compact, tubular gear motors located within each roller for smooth, reliable operation.
- A simple wall switch or hand held remote is included with each unit.


