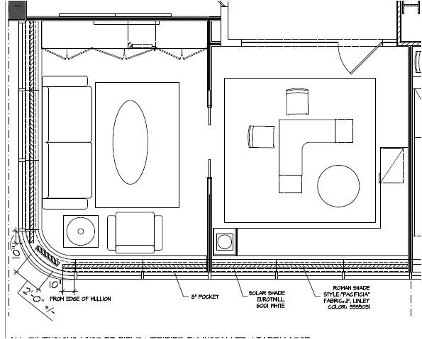
We recently completed a project that required great thought and planning. The architect asked us to figure out how to install both a roman shade, a solar shade in a series of windows that included a curved glass in the corner. The roman shade and the solar shade needed to fit into a 8″ pocket and to be intergrated with the Crestron Automation System in the office.
We love challenges, and this certainly was one. The two main difficulties was the pocket width and wrapping around the curve with both shades. As you can see below, the architect came up with a great idea of making the shades narrower then the actual curved window so we can fit it into the pocket. That allowed us to butt the other two shades close to the center making the gap as narrow as possible.

Since we were installing two shades in an 8″ pocket we needed to conserve on space. This was done by stacking the shades. You can see that in the sketch below. We also covered the boards that faced the street with black fabric to hide the mechanisms.
To wire the shades we had the power cords come through the tops of the boards which then snaked through a hole in the pocket to outlets provided in the ceiling with was accessed through the removeable ceiling tiles.

The intergration with the Crestron system took some effort to get the timing and stops correct, but was acheived succesfully. Below is a photo of the finished treatment.


